Tandeskogvegen 163, 2360 Rudshøgda
Søndre Fuglseng - SOLGT!
2376,3 daa | 251,4 daa fulldyrka | 1926 daa prod. skog | Stort våningshus, kårbolig og husmannsplass
Prisantydning: 21 000 000 kr
Omkostninger: 526 240 kr
Totalpris: 21 526 240 kr
Kommunale avgifter: 55 622 kr per år
Boligtype: Gårdsbruk/Småbruk
Eieform: Eier (Selveier)
Verditakst: 21 000 000 kr
Formuesverdi: 1 523 000 kr
Byggeår: 1790
Primærrom: 1 105 m²
Tomt: Eiet tomt
Tomteareal: 2 376 300 m² (eiet)
Omkostninger oppsett:
21 000 000,- (Prisantydning)
Omkostninger
240,- (Pantattest kjøper)
500,- (Tingl.gebyr pantedokument)
500,- (Tingl.gebyr skjøte)
525 000,- (Dokumentavgift (forutsatt salgssum: 21 000 000,-))
--------------------------------------------------------
526 240,- (Omkostninger totalt)
--------------------------------------------------------
21 526 240,- (Totalpris inkl. omkostninger)
NB: Regnestykket forutsetter at det kun tinglyses ett pantedokument og at eiendommen selges til prisantydning.
21 000 000,- (Prisantydning)
Omkostninger
240,- (Pantattest kjøper)
500,- (Tingl.gebyr pantedokument)
500,- (Tingl.gebyr skjøte)
525 000,- (Dokumentavgift (forutsatt salgssum: 21 000 000,-))
--------------------------------------------------------
526 240,- (Omkostninger totalt)
--------------------------------------------------------
21 526 240,- (Totalpris inkl. omkostninger)
NB: Regnestykket forutsetter at det kun tinglyses ett pantedokument og at eiendommen selges til prisantydning.

Thor Asbjørn Lunde
45 85 44 00
thor@landbruksmegling.no
For å bli oppdatert på bud og øvrig informasjon om eiendommen må du trykke på «bestill salgsoppgave» hvor du oppgir e-post og telefonnummer.
Adresse: Tandeskogvegen 163, 2360 Rudshøgda
KONTAKTSKJEMA
SPØRSMÅL OM EIENDOMMEN?
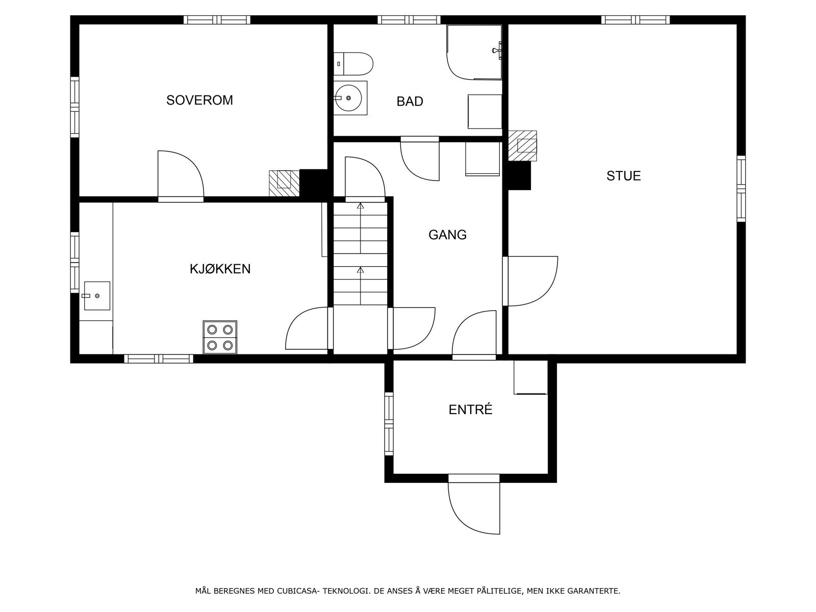
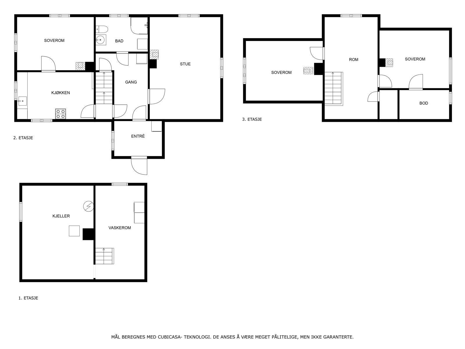
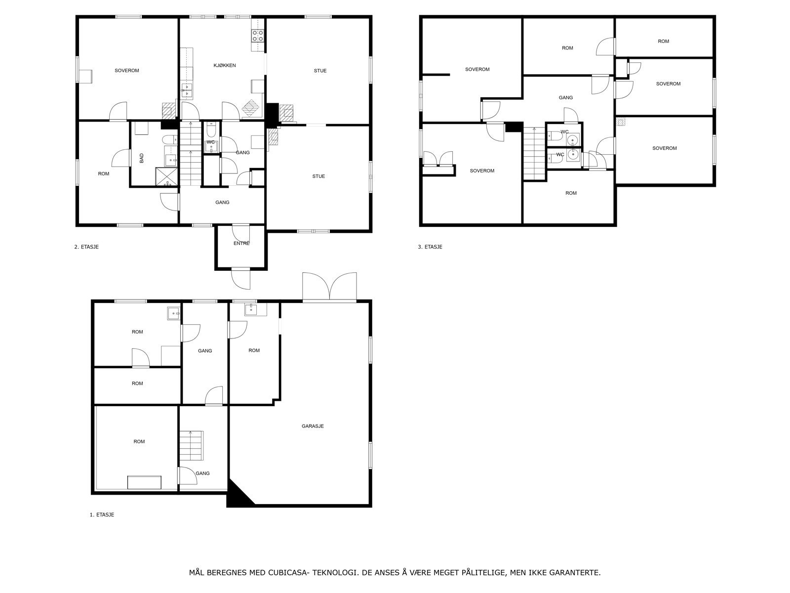
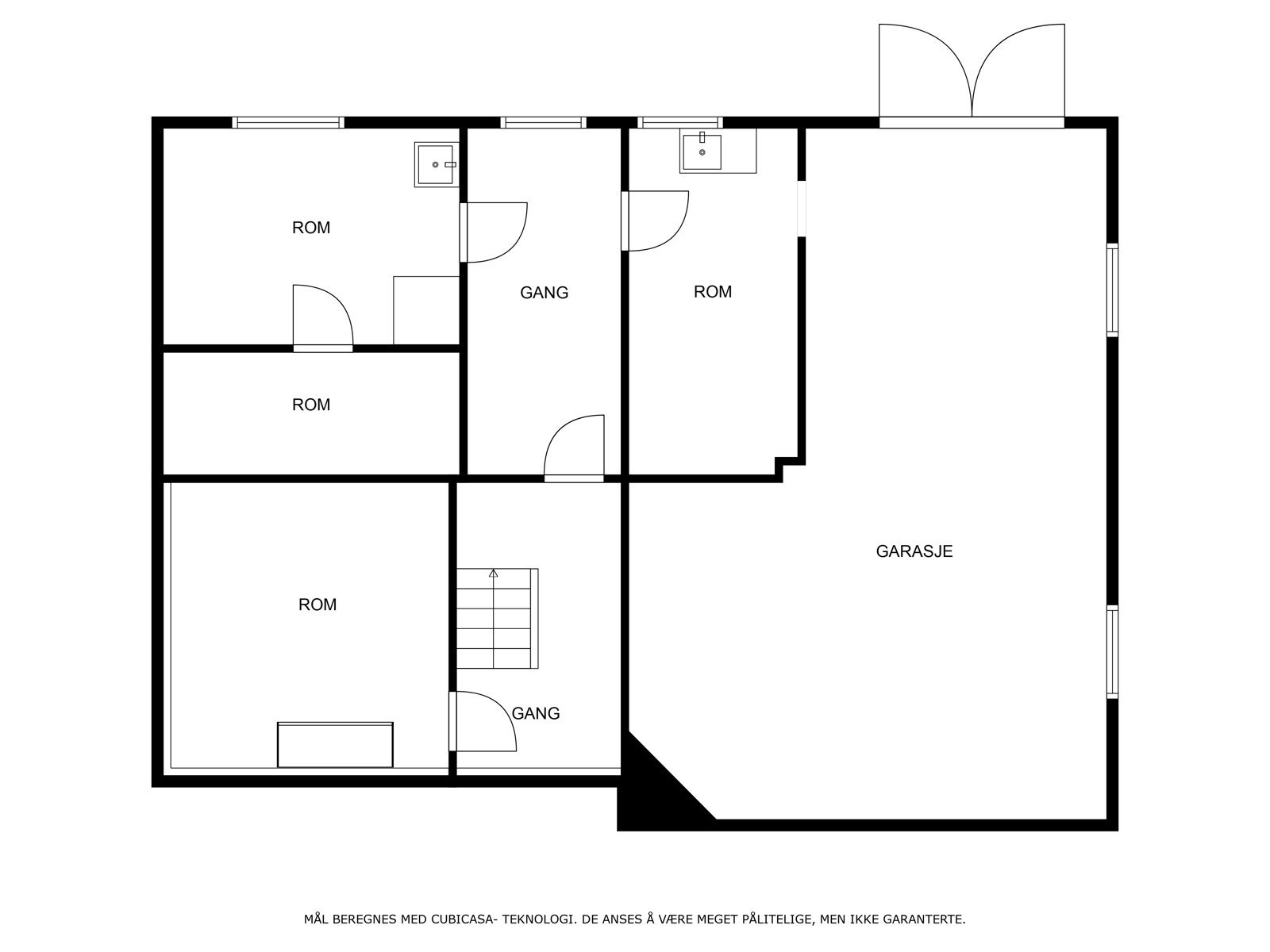
Historisk landbrukseiendom, Søndre Fuglseng på Rudshøgda – Stor landbrukseiendom med melkekvote på 175 490 liter. Innholdsrik landbrukseiendom med totalareal på 2 376,3 daa, 1926 daa. produktiv skog og 251,4 daa fulldyrka. Eiendommen inneholder våningshus, kårbolig, garasje, driftsbygning, stolpehus og stabbur. Husmannsplass med bolig, låve, uthus og redskapshus. Seter i Øyer. Eiendommen ligger på Rudshøgda i Ringsaker, ca. 20 km nord for Hamar.



