Sjolivegen 2336, 2676 Heidal
Glittersjå Fjellgård
En unik gård ved foten av Jotunheimen 760 moh | 20 særegne bygninger | Fjell og utmark | Velholdt
Prisantydning: 27 000 000 kr
Omkostninger: 676 240 kr
Totalpris: 27 676 240 kr
Kommunale avgifter: 7 500 kr per år
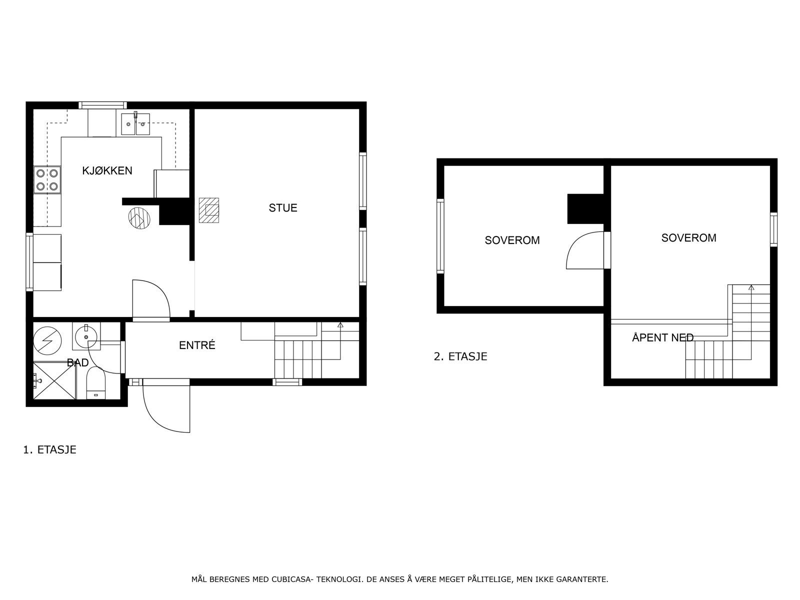
Boligtype: Gårdsbruk/Småbruk
Eieform: Eier (Selveier)
Verditakst: 24 800 000 kr
Byggeår: 1845
Primærrom: 168 m²
Tomt: Eiet tomt
Tomteareal: 551 400 m² (eiet)
Omkostninger oppsett:
27 000 000,- (Prisantydning)
Omkostninger
240,- (Pantattest kjøper)
500,- (Tingl.gebyr pantedokument)
500,- (Tingl.gebyr skjøte)
675 000,- (Dokumentavgift (forutsatt salgssum: 27 000 000,-))
--------------------------------------------------------
676 240,- (Omkostninger totalt)
--------------------------------------------------------
27 676 240,- (Totalpris inkl. omkostninger)
NB: Regnestykket forutsetter at det kun tinglyses ett pantedokument og at eiendommen selges til prisantydning.
27 000 000,- (Prisantydning)
Omkostninger
240,- (Pantattest kjøper)
500,- (Tingl.gebyr pantedokument)
500,- (Tingl.gebyr skjøte)
675 000,- (Dokumentavgift (forutsatt salgssum: 27 000 000,-))
--------------------------------------------------------
676 240,- (Omkostninger totalt)
--------------------------------------------------------
27 676 240,- (Totalpris inkl. omkostninger)
NB: Regnestykket forutsetter at det kun tinglyses ett pantedokument og at eiendommen selges til prisantydning.

Thor Asbjørn Lunde
45 85 44 00
thor@landbruksmegling.no
For å bli oppdatert på bud og øvrig informasjon om eiendommen må du trykke på «bestill salgsoppgave» hvor du oppgir e-post og telefonnummer.
Forhåndsvisning salgsoppgave: Vis Pdf
Visning:
Visning etter avtale med megler på tlf. 45854400. Velkommen!
Visning etter avtale med megler på tlf. 45854400. Velkommen!
Adresse: Sjolivegen 2336, 2676 Heidal
VIDEO
KONTAKTSKJEMA
SPØRSMÅL OM EIENDOMMEN?
Glittersjå Fjellgård! Enestående fjellgård og eiendom med magisk beliggenhet. Gården ligger ved foten av Jotunheimen med himmels utsikt til Glittertind! Gården er i dag tilpasset gårdsturisme, overnatting og andre opplevelser. Eiendommen består av tilsammen 20 unike hus. Totalareal er på 550 daa, herav 91 daa dyrket, 155 daa beite og 283 daa produktiv skog. Eiendommen har andel i større utmarkseiendom med jakt- og fiskerettigheter. Det er lagt et godt grunnlag for å drive fjelldyrepark og besøksgård videre om nye eiere ønsker det.
Velkommen til Glittersjå!



