Vestre Spydevoll
En svært påkostet gård med en usedvanlig flott hovedbygning og et vakkert tunområde. Redusert pris!
Omkostninger basert på prisantydning:
1. Dokumentavgift 2,5% kr 397 500,-
2. Tinglysing skjøte kr 545,-
3. Tinglysing pantdokument kr 545,- pr. dokument
4. Boligkjøperforsikring kr 13300,- (valgfritt)
Totalt kr 411 890,-
NB: Regnestykket forutsetter at det kun tinglyses ett pantedokument og at eiendommen selges til prisantydning.


Anne Sofie Strekerud
976 12 861
annesofie@landbruksmegling.no
For å bli oppdatert på bud og øvrig informasjon om eiendommen må du trykke på «bestill salgsoppgave» hvor du oppgir e-post og telefonnummer.
Ta kontakt for å avtale visning.
VIDEO
KONTAKTSKJEMA
SPØRSMÅL OM EIENDOMMEN?
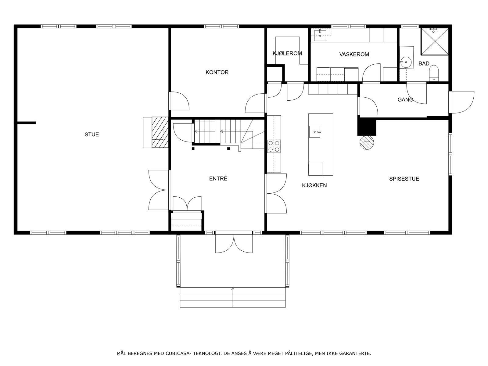
Velkommen til Vestre Spydevoll gård, en svært påkostet og velholdt eiendom med skjermet beliggenhet i skogkanten nord for Ise i Sarpsborg kommune. Eier har over flere år investert store summer i både bygninger og uteområde. Eiendommen innehar 83 dekar dyrket, 116 dekar produktiv skog og et totalt areal på ca. 327 dekar. Tunområdet er godt organisert og flott utformet med lyssatt allé, belegningsstein og parkmessig beplantning. De største Østfoldbyene ligger kun en kort kjøretur fra gården, med tilhørende pendlermuligheter og servicetilbud.
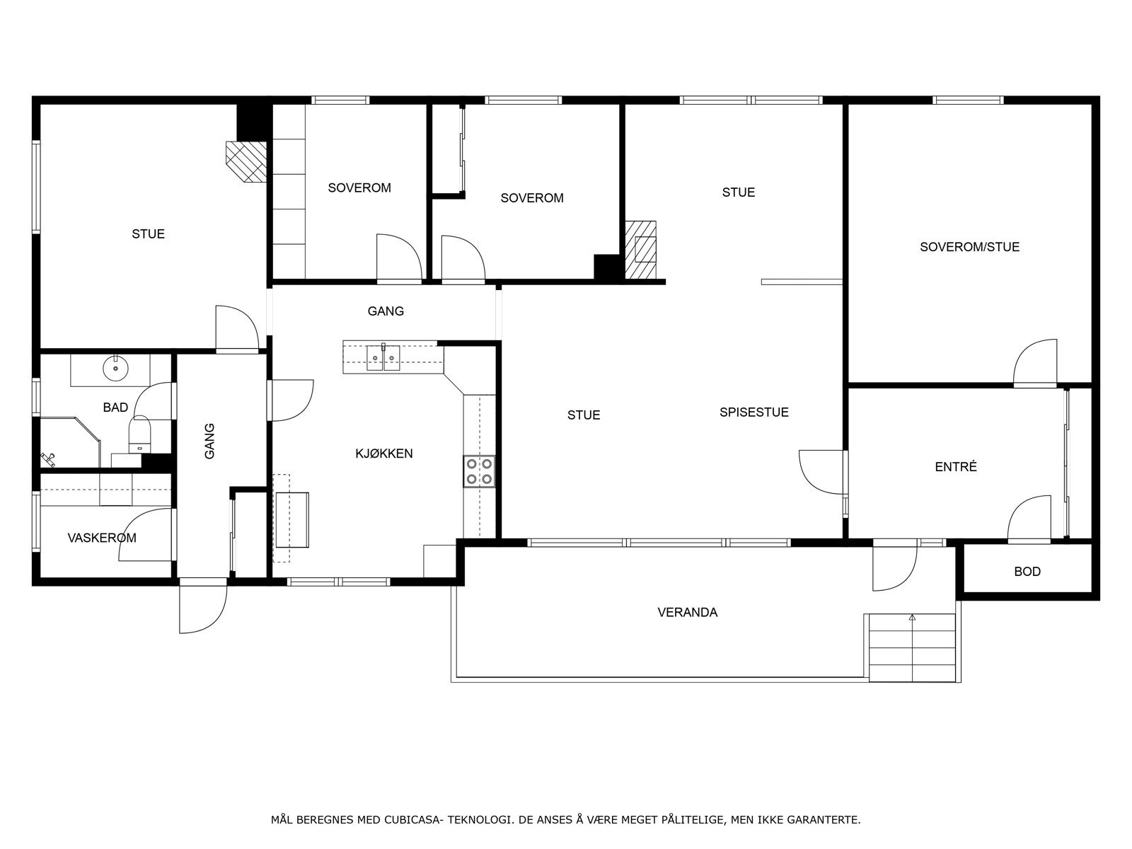
Bygningsmassen på gården holder høy standard og består av hovedhus med integrert garasje, kårbolig med tilhørende garasje, et sjarmerende stabbur med lyssatt klokketårn og en låve med stalldel, mye lagringsplass og korntørke med tippesjakt.



