Øvre Veien - SOLGT!
Hyggelig gårdsbruk med gode utleiemuligheter og stort potensiale- 50 min til Oslo, gangavstand til Hønefoss!
Omkostninger basert på prisantydning:
1. Dokumentavgift 2,5% kr 181 250,-
2. Tinglysing skjøte kr 545,-
3. Tinglysing pantdokument kr 545,- pr. dokument
4. Boligkjøperforsikring kr 13300,- (valgfritt)
Totalt kr 195 640,-

For å bli oppdatert på bud og øvrig informasjon om eiendommen må du trykke på «bestill salgsoppgave» hvor du oppgir e-post og telefonnummer.
VIDEO
KONTAKTSKJEMA
SPØRSMÅL OM EIENDOMMEN?
Øvre Veien gård har et totalt areal på ca. 202 daa., hvor 72 daa. er fulldyrket mark og 114 daa. er produktiv skog. Her er det gårdsidyll med store arealer og romslig bygningsmasse, men likevel gangavstand til Hønefoss og kun 50 min kjøring til Oslo!
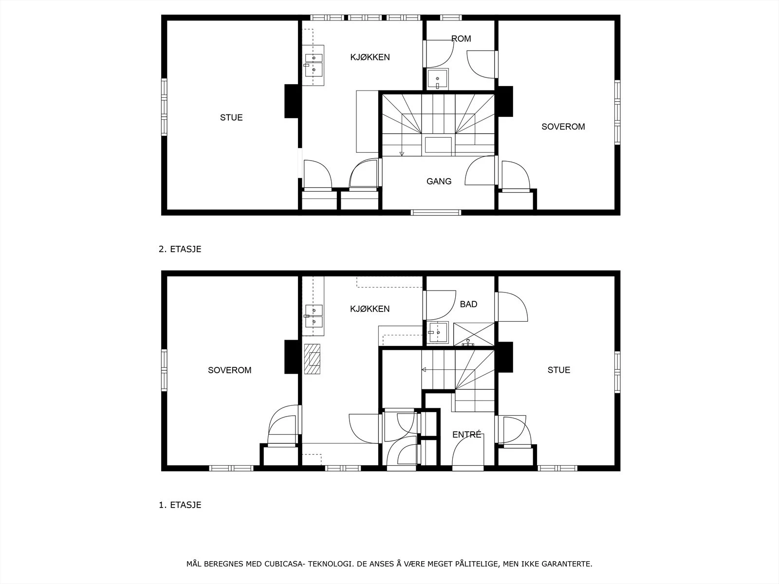
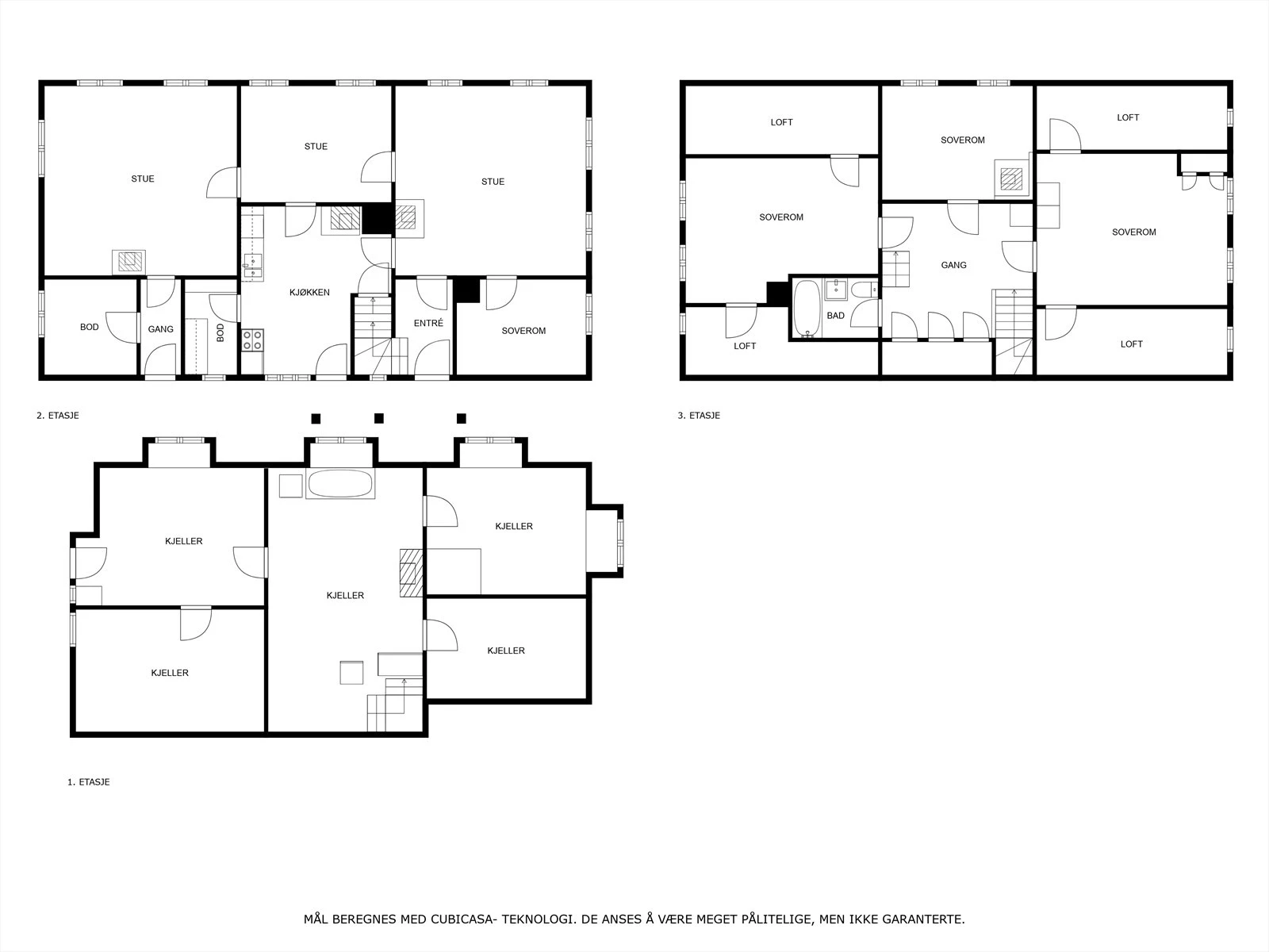
Eiendommens beliggenhet og utforming gir muligheter for gode leieinntekter. På tunet finnes et våningshus, kårbolig og en drengestue. Det er også stabbur og en romslig driftsbygning med potensiale. Tunet er beplantet med store trær og busker, som gir en lun atmosfære.
Jordene er bortleid til en nabogård, så her kan leien enten videreføres eller det er muligheter til å starte opp med eks. dyrking av grønnsaker eller korn. Skogen har til dels meget god bonitet og inkluderer et bestand av storvokst, hogstmoden furu.



