Bjørge - SOLGT!
Bjørge på Biri Midt mellom mjøsbyene | Våningshus og kårbolig | 114 daa dyrka, 63 daa beite | 440 daa skog
Omkostninger basert på prisantydning:
1. Dokumentavgift 2,5% av kr. 7.500.000,- kr. 187.500,-
2. Tinglysing skjøte kr 545,-
3. Tinglysing pantdokument kr 545,- pr. dokument
4. Boligkjøperforsikring kr 13300,- (valgfritt)

For å bli oppdatert på bud og øvrig informasjon om eiendommen må du trykke på «bestill salgsoppgave» hvor du oppgir e-post og telefonnummer.
VIDEO
KONTAKTSKJEMA
SPØRSMÅL OM EIENDOMMEN?
Kort om eiendommen
Bjørge ligger på Biri, ei bygd midt mellom Mjøsbyene, et område med felles arbeidsmarked. Eiendommen har et stort og innholdsrikt våningshus. Underetasjen har 2 separate innganger med muligheter for hybel. Boligen er stor og innholdsrik og har bl.a. 3 bad og 6 soverom. Øvrige bygninger på Bjørge består av en velholdt kårbolig, driftsbygning med plass til ca. 40 storfe og et redskapshus. Eiendommen består av 177,1 daa. jordbruksarealer, fordelt på 114,2 daa. jord og 62,9 daa. innmarksbeite. Både beite og jorda grenser inntil tunet. Totalt 440,1 daa. skog. Samlet består eiendommen av 642 daa. I fra eiendommen er det et nydelig skue utover Mjøsa og kulturlandskapet. Det er turmuligheter rett utenfor døra til alle årstider. Fjøset kan benyttes til storfe/ammeku. Det kan også benyttes til småfe
Inneholder
Våningshus (totalt bta 400 kvm.)
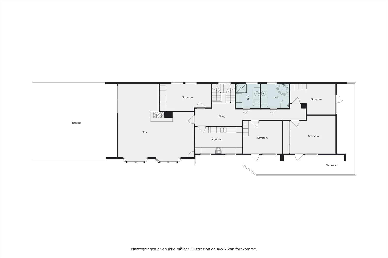
Underetasje (230 kvm.): Peisstue, vindfang 1, hall m/trapp, teknisk rom, bod, garasjerom, gang, kjølerom, badstue, bad, hobbyrom, vindfang 2, kontor, 2 soverom og wc.
1. etasje (170 kvm.): Gang, 2 bad, kjøkken, stue og 4 soverom.
Kårbolig (totalt bta 336 kvm.)
Kjeller (100 kvm.): Boder og uinnredet kjeller.
1. etasje (106 kvm.): Vindfang, hall med trapp, kjøkken, kammers, bad og stue.
2 etasje (100 kvm.): Hall med trapp, uinnredet rom, toalettrom uten toalett og 4 soverom.
Loft (30 kvm.): Uinnredet loftsrom.
Driftsbygning (totalt bta 510 kvm.)
Kjeller: Gjødselkjeller.
1. etasje (320 kvm.): Fjøs og silo/forrom. Det er plass til ca. 40 storfe.
Kjørebru (190 kvm.): Siloer.
Redskapshus (totalt bta 265 kvm.)
1. etasje (265 kvm.): Garasjerom.
Beliggenhet
Velkommen til Bjørge på Biri, ei bygd midt mellom Mjøsbyene Lillehammer, Moelv, Brumunddal, Hamar og Gjøvik, et område med over 120.000 innbyggere. Hele dette området nås innenfor 35 min kjøring fra eiendommen og utgjør et godt og variert arbeidsmarked, har stort og attraktivt kultur- og fritidstilbud og et bredt handelsmarked. Det er vedtatt at Innlandets nye hovedsykehus skal bygges på Moelv, 20 min fra eiendommen.
I fra Bjørge har du et nydelig skue utover Mjøsa og kulturlandskapet. Gården har vært i slekta siden 1917, hvor det var bestefar til selger som var første eier. Siden har den vært i eie til far og bror før nåværende eier overtok eiendommen. I gamle dager gikk bygdevegen over tunet på Bjørge. Gardsvegen følger den gamle bygdevegen som er tydelig i overkant av jordene. Etter hvert krevde motorisert ferdsel en ny veg, og denne var ferdig på tidlig 50 tall, og ligger knapt 100 m nedenfor tunet. Tømmer ble fram til ca. 1960 fraktet fra marka og korteste veg ned til Mjøsa ved Biristranda, hvor slepebåter fraktet tømmeret videre. På midten av 30 tallet ble det skilt ut 5 bureisingsbruk hver ca. 100 daa. i fra Bjørge skogen. I 1973 ble Heggeli, et tilgrensende bureisingsbruk, kjøpt og lagt til Bjørge. Foreldrene drev garden med melkeproduksjon som hovednæring, sau, gris, potet og egg som tilleggsnæring, og hage med bær, frukt og grønnsaker gjorde familien nærmest selvberget, ref. dagens beredskapsdebatt.
Eiendommen ligger landlig og usjenert til, i vakre omgivelser på Biri i Gjøvik kommune. Her får man et sted hvor man kan kjenne på roen, nyte naturen som omkranser eiendommen, samtidig som man kan nyte utsikten. Det er ca. 5 minutter med bil til sentrum av Biri. Et hyggelig og rolig tettsted hvor du kan handle det du trenger i hverdagen. Her er også en delikatesse butikk der du kan få kjøpt lokalprodusert mat i fra bygda. Og for de hesteinteresserte, Biri Travbane.
Ønsker man å oppleve nærområdet, er det uante turmuligheter til alle årstider rett utenfor døra. Fra stuedøra kan du gå på ski, ta fotturer, trimme, sanke bær eller jakte. Det er muligheter for småviltjakt, rådyrjakt, eller deltakelse i lokalt jaktlag for elg og hjort.
Mjøsa har et godt fiske, noe du også kan oppleve i lokale elver og vann ellers i bygda.
Eiendommen består av 177,1 daa. jordbruksarealer, fordelt på 114,2 daa. fulldyrket jord og 62,9 daa. innmarksbeite. Det er 440,1 daa. skog. Samlet består eiendommen av 642 daa.
Gårdens våningshus er langstrakt og innholdsrikt. Boligen er godt vedlikeholdt utvendig som innvendig. Hovedbygningen er over 2 plan og ble oppført midt på 70 tallet. Boligen ble senere påbygd på begynnelsen av 80 tallet. Boligen har to separate innganger i underetasjen. Trimrommet i underetasjen har innlagt både varmt- og kald vann, samt avløp. Det betyr at det er lett å anlegge en hybelleilighet i denne delen av underetasjen. Huset inneholder bl.a. 6 soverom og 3 bad. I fra stuen, kjøkkenet og tre soverom har du en fantastisk utsikt. Stue med peis som gir god plass til å huse hele familien til middag og andre sosiale tilstelninger. Herfra kan du gå rett ut til den store herlige terrassen. Her kan du bare nyte stillheten og naturen som omkranser eiendommen.
Fjøset kan benyttes til storfe-/ammeku. Det kan også benyttes til småfe (sau-/geit) eller hest. I skogen er det en graslagt traktorvei som kan benyttes til trening av hester. Den er ypperlig for trening av styrke og kondisjon.
Øvrige bygninger på Bjørge består av kårbolig, driftsbygning og redskapshus.
Adkomst
Fra E6 og Biri. Lierengvegen går opp i fra sentrum av Biri. Følg denne ca. 4,5 km, og Bjørge ligger inn en privat gårdsvei, høyre side.
Betalingsbetingelser
Hele kjøpesummen med omkostninger må være innbetalt og disponibel for megler på meglers klientkonto, senest på siste virkedag innen overtagelsen finner sted.
Overtagelse, tilleggsinfo.
Overtakelse etter nærmere avtale med selger. Det oppfordres til å nevne ønsket overtagelse i evt. bud.
Bebyggelse
Våningshus (Byggeår 1979)
Murt grunnmur antatt opplyst oppsatt på sprengt fjell (hoveddel) komprimerte og drenerende masser (tilbygg), innredet underetasje. Drenering og utvendig tettesjikt fra byggeår.
Vegger over terreng oppført i bindingsverkskonstruksjoner, antatt isolert, luftet og kledd med malt trepanel. Valmet tak-konstruksjon bygget med taksperrer i trekonstruksjoner. Tak tekket med metallplater, tilhørende takrenner, nedløp og beslag. Vinduer og dører med isolerglass. Veranda med utgang fra stue over garasje, overflater med impregnerte materialer. Rekkverk i malt utførelse. Trapp til terreng. Lufteveranda med utgang fra soverom.
Kårbolig (Byggeår 1957)
Murt grunnmur, hullblokk, antatt oppsatt på komprimerte og drenerende masser og fjell. Drenering og utvendig tettesjikt fra byggeår. Det er stningsskader i grunnmur på ett hjørne.
Vegger over terreng oppført i bindingsverkskonstruksjoner, antatt isolert, luftet og kledd med malt trepanel. Mønet saltak konstruksjon bygget med taksperrer i trekonstruksjoner. Tak tekket med takstein, tilhørende takrenner, nedløp og beslag. Vinduer og dører med isolerglass.
Modernisering (i 2003): Satt inn nye vinduer og ny taktekking.
Modernisering (i 2023): Nytt beslag på ei pipe.
Modernisering (i 2020): Montert nytt varmeanlegg.
Modernisering (i 1977): Etterisolert og ny utvendig kledning.
Driftsbygning (Byggeår 1980)
Tradisjonell låve oppført på dels støpt og murt fundamentering. Gjødselkjeller under fjøsdelen. Vegger over bakken er oppført i bindingskverkskonstruksjoner utvendig kledd med malt trepanel. Deler av bygget i stålbuer. Mønet saltak med trekonstruksjoner, tekket med metallplater. Etasjeskiller og kjørebru i trekonstruksjoner. Låvebrufundament er murt/støpt.
Spaltegulv i fjøs, delvis fornyet. Det er opplyst om at det er plass til ca. 40 dyr (storfe).
Redskapshus (Byggeår 1980)
Bygning opplyst oppsatt på fjell og komprimerte masser med støpt grunnmur og støpt gulv på deler av bygget. Nivåforskjeller på gulv. Vegger i bindingsverkskonstruksjoner med malt trepanel. Mønet saltak i trekonstruksjoner tekket med metallplater. Tilhørende takrenner, nedløp og beslag. Plassbygde skyveporter.
Skjevheter/deformasjoner i grunnmurskonstruksjoner.
Byggemåte
Våningshus
Utvendig
Veggkonstruksjon,TG2
Yttervegg i isolert bindingsverk som var normal byggeskikk på oppføringstidspunktet. Stående utvendig trekledning.
Vurdering av avvik: Eksakt tilstand kan ikke kontrolleres uten bygningsmessige inngrep Lufting av kledningen er ikke iht. dagens anbefalte løsning, men heller ikke dårligere enn normal løsning ved husets byggeår. Konstruksjonene er ikke skadedyr-sikker
Tiltak: Ingen umiddelbare tiltak ansees som nødvendig, men det anbefales å følge med bygningsdelen.
Takkonstruksjon/Loft,TG2
Valmet tak i trekonstruksjoner med taktro i bord/treverk. Luftespalter/ventiler ved raft. Ved enkle fuktmålinger registrerte jeg ikke verdier for skadelig fukt. Konstruksjonene prefabrikkert med kaldt loft. Adkomst til loft fra luke.
Vurdering av avvik: Konstruksjonene er dårligere enn dagens krav, men ikke dårligere enn hva som var normalt på oppføringstidspunktet.Utover dette er ingen spesielle avvik registrert.
Tiltak: Det er ikke nødvendig med umiddelbare tiltak, men det anbefales å følge med konstruksjonene.
Dører,TG2
Ytterdør i treverk med 2-lags energiglass. Heve/skyvedør i treverk med 2-lags energiglass. Balkongdører i treverk med 2-lags energiglass. Leddet garasjeport med elektrisk åpner.
Vurdering av avvik: Ytterdør: Ingen avvik registrert. Balkongdører og heve-skyvedør har forventet brukstid oppnådd.
Tiltak: Ytterdør: Ingen spesielle avvik registrert. Balkongdører og heve/skyvedør: Ingen umiddelbare tiltak er nødvendig, men oppgraderinger må etter hvert påregnes.
Balkonger, terrasser og rom under balkonger,TG2
Terrasse med utgang fra stue over garasje. Rekkverk og gulv i trekonstruksjoiner. Markise over. Det antas å være tekket med folie under tregulv. Veranda med utgang fra soverom. Konstruksjoner og overflater i treverk. Terrasser/verandaer som står under åpen himmel vil alltid ha vedlikeholdsbehov, dette må påregnes.
Vurdering av avvik: Det er registrert slitasje på gulv og rekkverk.
Tiltak: Vedlikehold og evt. lokale utbedringer må påregnes.
Innvendig
Etasjeskille/gulv mot grunn,TG2
Etasjeskille er utført i trekonstruksjoner. Dekke over garasje med elemeter.
Vurdering av avvik: Det er målt høydeforskjell på mellom 15-30 mm gjennom hele rommet. Tilstandsgrad 2 gis med bakgrunn i standardens krav til godkjente måleavvik.
Tiltak: For å få tilstandsgrad 0 eller 1 må høydeforskjeller rettes opp. Det vil imidlertid sjelden være økonomisk rasjonelt som et enkeltstående tiltak i en bolig som dette. Dersom boligen en gang skal renoveres, kan man vurdere slike tiltak.
Skjevheter i etasjeskiller er helt normalt tatt byggeår i betraktning. Ingen umiddelbare tiltak må påregnes.
Radon,TG2
Takstmannen har ikke kjennskap til radonmåling av boligen, boligen er ikke utført med radonsperre. Statens strålevern anbefaler radonmåling i bolig. Mer info angående radon kan hentes hos kommunen og Statens strålevern, www.nrpa.no/radon.
Vurdering av avvik: Radonmålinger er ikke foretatt, heller ikke andre tiltak mot radon, eiendommen ligger i et område som i NGU Radon aktsomhetskart er definert med «høy» eller «særlig høy» aktsomhetsgrad.
Tiltak: Det bør gjennomføres radonmålinger.
Rom Under Terreng,TG2
Grunnmuren er synlig. Hulltaking er derfor ikke aktuelt.
Vurdering av avvik: Det bemerkes at utforede yttervegger under utvendig terrengnivå er et kritisk punkt med tanke på fukt/kondensskader og har ofte skjulte feil og skader. Denne konstruksjonen blir derfor kalt en risikokonstruksjon.Kjeller virker ikke fuktig alder tatt i betraktning, men det må påregnes fuktvandring og fuktopptrekk via kjellergulv og grunnmur. Anses som normalt i eldre kjellere og vurderes derfor ikke som noe stort problem i forhold til dagens bruk, forutsatt god ventilering.
Tiltak: Det er ikke behov for utbedringstiltak, men det anbefales å følge med konstruksjonene.
Våtrom
1. etasje > Bad
Overflater vegger og himling,TG2
På vegg er: Fliser. I himling er: Himlingsplater. Det dusjes direkte på gulv/vegg, noe som gir økt belastning på konstruksjonene. Ved enkle fuktsøk registrerte jeg ingen unormale verdier.
Vurdering av avvik: Dusjing direkte på vegg/gulv gir økt belastning på konstruksjon og kan redusere levetiden på våtrommet. Slitte/misfargede fuger er registrert. Rommet har omtrent halvparten av forventet brukstid oppnådd. Rommet må brukes med forsiktighet og det må følges med på konstruksjonene da risikoen for skader er stor.
Tiltak: Det er ikke behov for utbedringstiltak siden våtrommet fungerer i dag, men ut ifra alder kan skader plutselig oppstå på eldre våtrom. Fornying/oppgradering av rommet bør etterhvert påregnes selv om rommet kan ha mange bruksår igjen. Dette er avhengig av bruk.
1. etasje > Bad
Overflater Gulv,TG2
Fliser på gulv med gulvvarme.
Vurdering av avvik: Rommet har omtrent halvparten av forventet brukstid oppnådd. Rommet må brukes med forsiktighet og det må følges med på konstruksjonene da risikoen for skader er stor. Slitte og misfargede fuger er registrert. Lokalt fall i dusjsone, ellers er gulvet tilnærmet flatt.
Tiltak: Rommet fungerer med dagens tilstand, men tilfredsstiller ikke krav til våtrom. Det er ikke behov for utbedringstiltak siden våtrommet fungerer i dag, men ut ifra alder kan skader plutselig oppstå på eldre våtrom.For å få tilstandsgrad 0 eller 1 må gulvet bygges om, for å få riktig fall til sluk. Det vil imidlertid sjelden være økonomisk rasjonelt som et enkeltstående tiltak. Ved en eventuell renovering, påse at våtrommet bygges med riktig fall til sluk. Vindu i våtsone er erfaringsmessig en risikokonstruksjon med høy skadefrekvens. Det er viktig at anbefalinger til godkjente løsninger er fulgt, dette er ikke mulig å kontrollere uten destruktive inngrep. Dokumentasjon foreligger ikke
1. etasje > Bad
Sluk, membran og tettesjikt,TG2
Plastsluk.
Vurdering av avvik: Vurdering basert på alder. Tilstandsgrad 2 gis med bakgrunn i at mer enn halvparten av forventet brukstid for membran/tettesjikt er passert. Det er nå ingen symptomer på funksjonssvekkelse, men vær oppmerksom på at dette er en risikokonstruksjon.
Tiltak: Overvåk tilstanden jevnlig. For å få tilstandsgrad 0 eller 1 må tettesjiktet skiftes ut, men tidspunktet for når dette er nødvendig er vanskelig å si noe om. Ved renovering, påse at alle forhold med tettesjiktet, våtsone, sluk, røranlegg mv. dokumenteres.
1. etasje > Bad 2
Overflater vegger og himling,TG2
På vegg er: Fliser. I himling er: Himlingsplater. Det dusjes direkte på gulv/vegg, noe som gir økt belastning på konstruksjonene.
1. etasje > Bad 2
Overflater Gulv,TG2
Fliser på gulv med gulvvarme. Det dusjes direkte på gulv/vegg, noe som gir økt belastning på konstruksjonene.
Vurdering av avvik: Rommet har mer enn halvparten av forventet brukstid oppnådd. Rommet må brukes med forsiktighet og det må følges med på konstruksjonene da risikoen for skader er stor. Lokalt fall i dusjsone, ellers er gulvet tilnærmet flatt. Forventet brukstid av rommet er nært forestående/oppnådd.
Tiltak: Rommet fungerer med dagens tilstand, men tilfredsstiller ikke krav til våtrom. Det er ikke behov for utbedringstiltak siden våtrommet fungerer i dag, men ut ifra alder kan skader plutselig oppstå på eldre våtrom. For å få tilstandsgrad 0 eller 1 må gulvet bygges om, for å få riktig fall til sluk. Det vil imidlertid sjelden være økonomisk rasjonelt som et enkeltstående tiltak. Ved en eventuell renovering, påse at våtrommet bygges med riktig fall til sluk. Vindu i våtsone er erfaringsmessig en risikokonstruksjon med høy skadefrekvens. Det er viktig at anbefalinger til godkjente løsninger er fulgt, dette er ikke mulig å kontrollere uten destruktive inngrep. Dokumentasjon foreligger ikke.
1. etasje > Bad 2
Sluk, membran og tettesjikt,TG2
Plastsluk.
Vurdering av avvik: Vurdering basert på alder. Tilstandsgrad 2 gis med bakgrunn i at mer enn halvparten av forventet brukstid for membran/tettesjikt er passert. Det er nå ingen symptomer på funksjonssvekkelse, men vær oppmerksom på at dette er en risikokonstruksjon.
Tiltak: Overvåk tilstanden jevnlig. For å få tilstandsgrad 0 eller 1 må tettesjiktet skiftes ut, men tidspunktet for når dette er nødvendig er vanskelig å si noe om. Ved renovering, påse at alle forhold med tettesjiktet, våtsone, sluk, røranlegg mv. dokumenteres.
Underetasje > Bad
Overflater vegger og himling,TG2
På vegg er: Fliser. I himling er: Panel. Det dusjes direkte på gulv/vegg, noe som gir økt belastning på konstruksjonene. Ved enkle fuktsøk registrerte jeg ingen unormale verdier.
Vurdering av avvik: Rommet har omtrent av forventet brukstid oppnådd. Rommet må brukes med forsiktighet og det må følges med på konstruksjonene da risikoen for skader er stor.
Tiltak: Det er ikke behov for utbedringstiltak siden våtrommet fungerer i dag, men ut ifra alder kan skader plutselig oppstå på eldre våtrom. Fornying/oppgradering av rommet bør etterhvert påregnes selv om rommet kan ha mange bruksår igjen. Dette er avhengig av bruk.
Underetasje > Bad
Overflater Gulv,TG2
Fliser på gulv. Med gulvvarme. Fallforhold på gulvet er målt og funnet tilfredsstillende. Det dusjes direkte på gulv/vegg, noe som gir økt belastning på konstruksjonene. Fall er ikke iht. dagens krav, men de krav som var gjeldene ved byggeår. Fall forhold er målt og funnet tilfredsstillende.
Tiltak: Det er ikke behov for utbedringstiltak siden våtrommet fungerer i dag, men skader/ følgeskader kan oppstå på rom som ikke er fagmessig utført.
Underetasje > Bad
Sluk, membran og tettesjikt,TG2
Plastsluk.
Vurdering av avvik: Vurdering basert på alder. Tilstandsgrad 2 gis med bakgrunn i at mer enn halvparten av forventet brukstid for membran/tettesjikt er passert. Det er nå ingen symptomer på funksjonssvekkelse, men vær oppmerksom på at dette er en risikokonstruksjon.
Tiltak: Overvåk tilstanden jevnlig. For å få tilstandsgrad 0 eller 1 må tettesjiktet skiftes ut, men tidspunktet for når dette er nødvendig er vanskelig å si noe om. Ved renovering, påse at alle forhold med tettesjiktet, våtsone, sluk, røranlegg mv. dokumenteres.
Underetasje > Bad
Ventilasjon,TG2
Det er varme i gulv.
Vurdering av avvik: Det er ikke tilluft under dør eller mekanisk avtrekk.
Tiltak: Mekanisk avtrekk anbefales etabler og tilluft i/under dør anbefales etablert.
Tekniske installasjoner
Vannledninger,TG2
Plast, rør-i-rør. Kobber/metall. Innvendig hovedstoppekran er plassert i kjeller. Anlegget er ikke teknisk vurdert. Jeg er ikke VVS fagmann, kontakt rørlegger for evt. nærmere kontroll av anlegget. Bunnledningene og utvendige ledninger er nedgravd og ikke tilgjengelig for inspeksjon.
Vurdering av avvik: Vurdering er basert på alder. Tilstandsgrad 2 gis med bakgrunn i at mer enn halvparten av forventet brukstid for skjulte røranlegg er passert. Det er nå ingen symptomer på funksjonssvekkelse, men vær oppmerksom på at dette er en risikokonstruksjon.
Tiltak: Overvåk tilstanden jevnlig. For å få tilstandsgrad 0 eller 1 må røranlegget skiftes ut, men tidspunktet for når dette er nødvendig er vanskelig å si noe om. Ved renovering, påse at røranlegget dokumenteres av fagperson.
Det er ikke behov for utbedringstiltak siden anlegget fungerer i dag, men ut ifra alder kan skader plutselig oppstå på eldre anlegg.
Avløpsrør,TG2
Synlige avløpsrør i: Plast. Anlegget er ikke teknisk vurdert. Jeg er ikke VVS fagmann, kontakt rørlegger for evt. nærmere kontroll av anlegget. Bunnledningene og utvendige ledninger er nedgravd og ikke tilgjengelig for inspeksjon.
Vurdering av avvik: Vurdering er basert på alder. Tilstandsgrad 2 gis med bakgrunn i at mer enn halvparten av forventet brukstid for skjulte røranlegg er passert. Det er nå ingen symptomer på funksjonssvekkelse, men vær oppmerksom på at dette er en risikokonstruksjon.
Tiltak: Overvåk tilstanden jevnlig. For å få tilstandsgrad 0 eller 1 må røranlegget skiftes ut, men tidspunktet for når dette er nødvendig er vanskelig å si noe om. Ved renovering, påse at røranlegget dokumenteres av fagperson.
Det er ikke behov for utbedringstiltak siden anlegget fungerer i dag, men ut ifra alder kan skader plutselig oppstå på eldre anlegg.
Ventilasjon,TG2
Ventilasjonen består av naturlig ventilasjon. Frisk tilluft blir tilført gjennom ventil i yttervegg, ventiler i vindu eller gjennom aktiv lufting med vinduer. Brukt luft trekkes ut uten bruk av vifter.
Vurdering av avvik: Ventilasjonen i boligen tilfredsstiller ikke dagens krav til klima og miljø. Boligen fungerer med dette avviket, men det bør vurderes energibesparende tiltak.
Tiltak: Ventileringen er ikke i henhold til dagens krav. Tiltak må vurderes ut fra bruk/behov.
Varmesentral,TG2
Sentralftr plassert i kjeller, oppvarming med strøm. Det er oppvarming ved radiatorer.
Vurdering av avvik: Som følge av alder på anlegg/tekniske installasjoner er det påregnelig med vedlikehold og utskiftninger.
Tiltak: Service, lokale utbedringer og evt. utskiftninger er påregnelig.
Varmtvannstank,TG2
Det er varmtvannsbereder på ca. 200 liter plassert i kjeller.
Vurdering av avvik: Det er innført krav om at varmtvannsberedere med effekt over 1500 watt ikke skal være tilkoblet med vanlig stikkontakt, men være såkalt fast tilkoblet. Kravet ble opprinnelig innført i 2010 og gjaldt da varmtvannsberedere med effekt over 2000 watt, men ble endret til 1500 watt i 2014. Kravene til fast tilkobling av varmtvannsberedere fremgår av NEK 400.
Tiltak: Bereder anbefales tilkoblet direkte på det elektriske nettet uten bruk av støpsel.
Tomteforhold
Fuktsikring og drenering,TG2
Grunnmursplast som utvendig fuktsikring, synlig enkelte steder.Takvann ført ned i grunnen. Det er ikke kjennskap til utbedringer av fuktsikring siden byggeår.
Vurdering av avvik: Mer enn halvparten av forventet levetid på drenering er overskredet.
Grunnmursplast mangler avslutningslist over terreng, dette må monteres slik at vann ikke renner ned på innside av grunnmursplast.
Tiltak: Overvåk tilstanden jevnlig. For å få tilstandsgrad 0 eller 1 må dreneringen skiftes ut, men tidspunktet for når dette er nødvendig er vanskelig å si noe om. Bruken av underetg/kjeller vil og være avgjørende.
Grunnmur og fundamenter,TG2
Grunnmur utført med lettklinkerblokker.
Vurdering av avvik: Vurdering basert på alder. Tilstandsgrad 2 gis med bakgrunn i at det nærmer seg forventet brukstid grunnmur og fundamenter. Det er nå ingen symptomer på funksjonssvekkelse, men vær oppmerksom på at dette er en risikokonstruksjon.
Tiltak: Overvåk tilstanden jevnlig. Tidspunktet for reparasjon og eventuelt når dette er nødvendig er vanskelig å si noe om. Bruken av underetg/kjeller vil også være avgjørende.
Forstøtningsmurer,TG2
Murt støttemur.
Vurdering av avvik: Halvparten av forventet brukstid for støttemuren er oppnådd og er opplyst å være bygget med de skjevheter som er. Muren er opplyst å øvre bygget frotsikker med du, løse masser og fylt med pukk både under og bak.
Tiltak: Ingen umiddelbare tiltak ansees som nødvendig, men det anbefales å følge med videre utvikling.
Terrengforhold,TG2
Skrånet tomt.
Vurdering av avvik: Det er påvist dårlig fall eller flatt terreng inn mot grunnmur og dermed muligheter for større vannansamlinger.
Tiltak: Ytterligere undersøkelser anbefales.
Kostnadsestimat: Ingen umiddelbar kostnad
Septiktank,TG2
Septiktanker opplyst utført i betong, flere tanker/kammer.
Vurdering av avvik: Ingen dokumentasjon på septiktank/utførelse.
Tiltak: Det er ikke behov for strakstiltak ut ifra at anlegget fungerer i dag, men ut ifra alder kan skader plutselig oppstå på eldre avløpsanlegg. Det kan være påregnelig med oppgraderinger av anlegget.
Våningshus
Byggetegninger, brannceller og krav for rom til varig opphold.
Det foreligger ikke tegninger.
Det er ikke forelagt byggegodkjente tegninger, det forutsettes at bygningen er godkjent slik den er brukt på befaringsdagen.
Er det påvist synlige tegn på avvik i branncelleinndeling ut ifra dagens byggteknisk forskrift? Nei
Er det ifølge eier utført håndverkstjenester på boligen siste 5 år? Nei
Er det påvist avvik i forhold til rømningsvei, dagslysflate eller takhøyde? Nei
Våningshus
Standard:
Boligen fremstår med normal standard og vil kunne tilfredsstille de fleste hva gjelder krav til bostandard.
Vedlikehold:
Bygningen fremstår vedlikeholdt både utvendig og innvendig, men har bygningsdeler som har utlevd eller tilnærmet utlevd sin brukstid. Ved kjøp av brukt bolig kan det være vanskelig å vite hva man skal forvente av behov for vedlikehold og oppgradering. Alder og tilstand på for eksempel tak, kledning, vinduer og rør vil avgjøre byggets vedlikeholdsbehov fremover. Byggeskikk og materialvalg vil også variere ut ifra byggets alder, noe som gjør at energiforbruk, komfort og bruk kan variere fra bygning til bygning avhengig av alder og hva som eventuelt er oppgradert. Det er viktig å ta hensyn til bruksmønsteret som har vært i boligen, blir bruksmønsteret endret blir også forutsetningene for konstruksjonene endret. Boligens alder tilsier at det ved en ombygging/oppussing vil kunne avdekkes feil/mangler utover det beskrevne i rapporten.
Kommunale avgifter
Renovasjon kr. 3656,-
Slamtømming kr. 3390,-
Eiendomsskatt kr. 2328,-
Eiendomsskattetaksten er kr. 583.600,-
Tomten
Tun
Tunet er opparbeidet med plen og beplanting. Det er gruset gårdsplass og adkomstveg.
Jord
Dyrket mark og beiter er beliggende rundt tunet og i nærhetene av tunet. Arealet anees å ha en moderat arrondering og dels hellende/bratt. Jorda er godt egnet til gras-/fôrproduksjon. Jorda er bortleid ut 2025. Dyrka areal utgjør 114,2 daa og beite utgjør 62,9 daa.
Seter på Åsgard på Ytteråsen og skogteig ved Nysetervegen på det som kalles Seteråsen, gir muligheter for både sau og ungdyr på utmarksbeite i åsen. Teigen på Åsgard, på rundt 23 daa. er felleseie med gnr./bnr. 142/1 (naboen) og stammer i fra felles seter.
Skog
Skog er beliggende som kantsoner og forlengelse av dyrket mark samt en teig beliggende ca. 9 km nord/vest for tunet langs Nysetervegen. Det ansees å være normale driftsforhold rundt skogen og det er greit å få ut virke på veg. Det er 440,1 daa. skog. Det er ca. kr. 510.000,- innestående på skogfondkonto. Dette dekker kostnadene for planting etter hogsten som ble gjennomført i 2024 (kanskje 20 % av fondet). Sammen med skattefordel og kommunalt bidrag, vil resten av fondet dekke evt. suppleringsplanting samt ungskogpleie for arealene som står i hogstklasse 2. Det vil derfor ikke bli utgifter for å etablere ny produksjonsskog.
Det foreligger skogbruksplan.
Tilvekst: 105 kbm/årlig
Stående masse: 1900kbm.
Bonitetsfordeling
11- 21%
14 – 41%
17 – 37%
20 – 1%
Hogstklassefordeling:
1 – 13%
2 – 56%
3 – 10%
4 – 13%
5 – 8%
Radonmåling
Radonmålinger er ikke foretatt, heller ikke andre tiltak mot radon, eiendommen ligger i et område som i NGU Radon aktsomhetskart er definert med «høy» eller «særlig høy» aktsomhetsgrad.
Offentlig kommunikasjon
Kjøreavstander fra eiendommen:
* Gjøvik, ca. 25 min.
* Hafjell, ca. 30 min.
* Skeikampen, ca. 1 time
* Hamar, ca. 30 min.
* Lillehammer, ca. 25 min.
* Oslo, ca. 2 timer
* Oslo Lufthavn Gardermoen, ca. 1 time og 30 min.
Oppvarming
Det er sentralfyr i våningshus som er plassert i kjeller. Dette er elektrisk oppvarming med radiatorer. Noen gulv har varmekabler.
Kårboligen har en nyere varmesentral plassert i kjelleren. Dette er elektrisk oppvarming med radiatorer. Bad har varmekabler.
Skolekrets
Det går gratis skolebuss forbi eiendommen både om morgenen og ettermiddagen, med bussruter tilpasset skoletiden for de på barne- og ungdomstrinnet og for videregående elever
Barnehage/skole/fritid
Det er både ny barnehage og barneskole på Biri. Ungdomsskolen er også relativt ny. Biringer går på videregående skoler hovedsakelig på Gjøvik, men det er også mulig å velge andre skoler i området, som Lillehammer, Gausdal, Raufoss og Lena mfl.
Barnehager
Biri barnehage (1-5 år) 10 min. Ny for et år siden.
57 barn 5.5 km
Diseth FUS barnehage (1-5 år) 11 min
57 barn 6.3 km
Nordby gårdsbarnehage Biri (1-5 år) 13 min
35 barn 7.8 km
Skoler
Biri barneskole (1-7 kl.) 10 min. Ny for et år siden.
392 elever 5.5 km
Biri ungdomsskole (8-10 kl.) 10 min. Ny for noen få år siden.
136 elever, 9 klasser 5.5 km
Statens gartner- og blomsterdekoratør. 24 min
80 elever, 7 klasser 17.2 km
Gjøvik videregående skole 30 min
1050 elever 26.1 km
Sport og trening
Meget aktivt idrettslag i bygda med Biri idrettspark bestående av idrettsbaner, lysløype og ny flerbrukshall. 11 min.
Det er et rikt organisasjonsliv i bygda.
Personopplysningsloven
I henhold til personopplysningsloven gjør vi oppmerksom på at interessenter kan bli registrert for videre oppfølgning.
Hvitvaskingsreglene
Eiendomsmeglere er underlagt Lov om tiltak mot hvitvasking og terrorfinansiering (hvitvaskingsloven) – L01.06.2018 nr. 23. Det følger av loven at megler bl.a. har plikt til å gjennomføre kundekontroll. I de tilfeller hvor kunden er juridisk person skal megler også kartlegge hvem som er reelle rettighetshavere. Med reelle rettighetshavere menes fysiske personer som eier eller kontrollerer mer enn 25% av eierandelene i selskapet. Partene må bidra til at kundekontrollen lar seg gjennomføre på en hensiktsmessig måte. Megler plikter å rapportere mistenkelige transaksjoner til Økokrim. Ved slik rapportering vil ikke partene blir varslet.
Vedlegg til Salgsoppgaven
Landbrukstakst
Tilstandsrapport
Selgers egenerklæring
Energimerking
Kommunale opplysninger
Ferdigattest/midlertidig brukstillatelse
Reguleringsbestemmelser
Servitutter
Lovverk
Eiendommen skal overleveres kjøper i tråd med det som er avtalt. Det er viktig at kjøper setter seg grundig inn i alle salgsdokumentene, herunder salgsoppgave, tilstandsrapport og selgers egenerklæring. Kjøper anses kjent med forhold som er tydelig beskrevet i salgsdokumentene. Forhold som er beskrevet i salgsdokumentene kan ikke påberopes som mangler. Dette gjelder uavhengig av om kjøper har lest dokumentene. Alle interessenter oppfordres til å undersøke eiendommen nøye, gjerne sammen med fagkyndig før bud inngis. Kjøper som velger å kjøpe usett kan ikke gjøre gjeldende som mangel noe han burde blitt kjent med ved undersøkelsen.
Dersom det er behov for avklaringer, anbefaler vi at kjøper rådfører seg med eiendomsmegler eller en bygningssakyndig før det legges inn bud. Hvis eiendommen ikke er i samsvar med det kjøperen må kunne forvente ut ifra alder, type og synlig tilstand, kan det være en mangel. Det samme gjelder hvis det er holdt tilbake eller gitt uriktige opplysninger om eiendommen. Dette gjelder likevel bare dersom man kan gå ut ifra at det virket inn på avtalen at opplysningen ikke ble gitt eller at feil opplysninger ikke ble rettet i tide på en tydelig måte. En bolig som har blitt brukt i en viss tid, har vanligvis blitt utsatt for slitasje og skader kan ha oppstått. Slik bruksslitasje må kjøper regne med, og det kan avdekkes enkelte forhold etter overtakelse som nødvendiggjør utbedringer. Normal slitasje og skader som nødvendiggjør utbedring, er innenfor hva kjøper må forvente og vil ikke utgjøre en mangel.
Boligen kan ha en mangel dersom det er avvik mellom opplyst og faktisk areal, forutsatt at avviket er på 2% eller mer og minimum 1 kvm. Ved beregning av et eventuelt prisavslag eller erstatning må kjøper selv dekke tap/kostnader opptil et beløp på kr 10 000 (egenandel).
Dersom kjøper ikke er forbruker selges eiendommen «som den er», og selgers ansvar er da begrenset jf. avhl. § 3-9, 1. ledd 2. pktm. Avhendingsloven § 3-3 (2) fravikes, og hvorvidt en innendørs arealsvikt karakteriseres som en mangel vurderes etter avhendingsloven § 3-8. Informasjon om kjøpers undersøkelsesplikt, herunder oppfordringen om å undersøke eiendommen nøye, gjelder også for kjøpere som ikke anses som forbrukere. Med forbrukerkjøp menes kjøp av eiendom når kjøperen er en fysisk person som ikke hovedsakelig handler som ledd i næringsvirksomhet.»
Diverse
Ved overtakelse av eiendommen blir våningshuset ryddet og rengjort. Øvrige bygninger og utearealer overtas slik det fremstår på visning og vil ikke bli ryddet eller rengjort ut over dette. Selger forbeholder seg retten til å ta med seg det han selv ønsker av Løsøre, maskiner, redskaper og antikviteter. Dette gjelder også frittstående hvitevarer.
Regulering
Eiendommen ligger i LNFR-område. Gjeldene plan Kommuneplanens arealdel 2020-2032. Plan id KP2020-2032. LNRF areal for nødvendige tiltak for landbruk og reindrift og gårdstilknyttet næringsvirksomhet basert på gårdens ressursgrunnlag.
Ferdigattest
Det foreligger godkjente bygningstegninger på våningshuset, datert 9/6-1975.
Det foreligger tegninger for tilbygg på våningshuset, datert 31/8-1982.
Det foreligger forslag til tegninger på tilbygg på fjøset, datert 14/1-1982.
Det foreligger innflyttings tillatelse i fra Gjøvik kommune, datert 26/5-1976.
Det foreligger ingen ferdigattester eller midlertidig brukstillatelse i kommunens arkiv. Til info utstedes det ikke lengre ferdigattest for tiltak det er søkt om før 1. januar 1998.
Det foreligger ikke godkjente og byggemeldte tegninger på øvrig bygningsmasse, og kjøper påtar seg risikoen for både fremtidig, fortsatt bruk og eventuelle pålegg, for alle ovennevnte ulovlige forhold, herunder risikoen for om bruken lar seg godkjenne, og alle kostnader forbundet med dette. Det kan være krav i lov, forskrift og planverk som ikke er eller kan oppfylles, i så fall vil kommunen kunne kreve at rommet/ rommene/ bygningsdelene settes tilbake til opprinnelig godkjent stand.
Vei, vann og avløp
Eiendommen har adkomst via privat veg. Utgifter til vedlikehold og snøbrøyting må påregnes. Ikke fremlagt avtale om vegrett.
Eiendommen har privat vann fra brønn, borehull. Vannprøve er ikke foretatt, nærmere undersøkelser anbefales. Stabilt vann, men noe bygrenset mengde.
Eiendommen har privat avløp. Eiendom som ikke er tilknyttet offentlig vann og avløp skal ha godkjent separat avløpsanlegg. Det er eiers ansvar at anlegget er riktig dimensjonert og at det fungerer tilfredsstillende. Kjøper oppfordres til å kontrollere anlegget. Eiendommer som ligger i nærheten av offentlig vann- og avløpsnett, vil få krav om tilknytning. Dette er hjemlet i plan og bygningsloven.
Servitutter
På eiendommen er tinglyst følgende heftelser og rettigheter som følger eiendommens matrikkel ved overskjøting til ny hjemmelshaver, og ved inngivelse av bud vil disse
være akseptert av budgiver/kjøper:
1813/900002-1/19 31.05.1813 UTSKIFTING
Gjelder gårdens skog og mark
GJELDER DENNE REGISTERENHETEN MED FLERE
1905/900172-1/19 01.11.1905 UTSKIFTING
GJELDER DENNE REGISTERENHETEN MED FLERE
1952/175-1/19 16.01.1952 BESTEMMELSE OM VANNRETT
RETTIGHETSHAVER: KNR: 3407 GNR: 143 BNR: 13
Bestemmelse om vannledning
1970/6238-1/19 30.09.1970 ERKLÆRING/AVTALE
Rettighetshaver: Televerket
Bestemmelse om radio/TV anlegg
1977/970-1/19 01.02.1977 JORDSKIFTE
1979/10980-2/19 19.12.1979 BEST. OM ADKOMSTRETT
RETTIGHETSHAVER: KNR: 3407 GNR: 143 BNR: 14
Bestemmelse om kloakkledning
Bestemmelse om vannledning
1991/1056-1/19 05.02.1991 BESTEMMELSE OM VANNRETT
RETTIGHETSHAVER: KNR: 3407 GNR: 142 BNR: 9
RETTIGHETSHAVER: KNR: 3407 GNR: 142 BNR: 10
GJELDER DENNE REGISTERENHETEN MED FLERE
2005/2783-1/19 15.04.2005 JORDSKIFTE
Grensegangssak
Sak 9/1997-05.20
Rettsboka er fysisk arkivert på 142/1
GJELDER DENNE REGISTERENHETEN MED FLERE
Kommunen har rett på skiløyper over eiendommen. Avtalen går til 2034 og fornyes om den ikke sies opp.
En kjøper/långiver må på eget initiativ sørge for å gjøre seg kjent med innholdet i grunnbøkene og samtlige tinglyste heftelser. Alle tilgjengelige servitutter i Statens Kartverk er innhentet av megler, disse kan oversendes på forespørsel.
Ansvarlig megler
Thor Asbjørn Lunde



